Lompolo 123

Kerroksia
1,5
Kerrosala
123 m² (100 + 23)
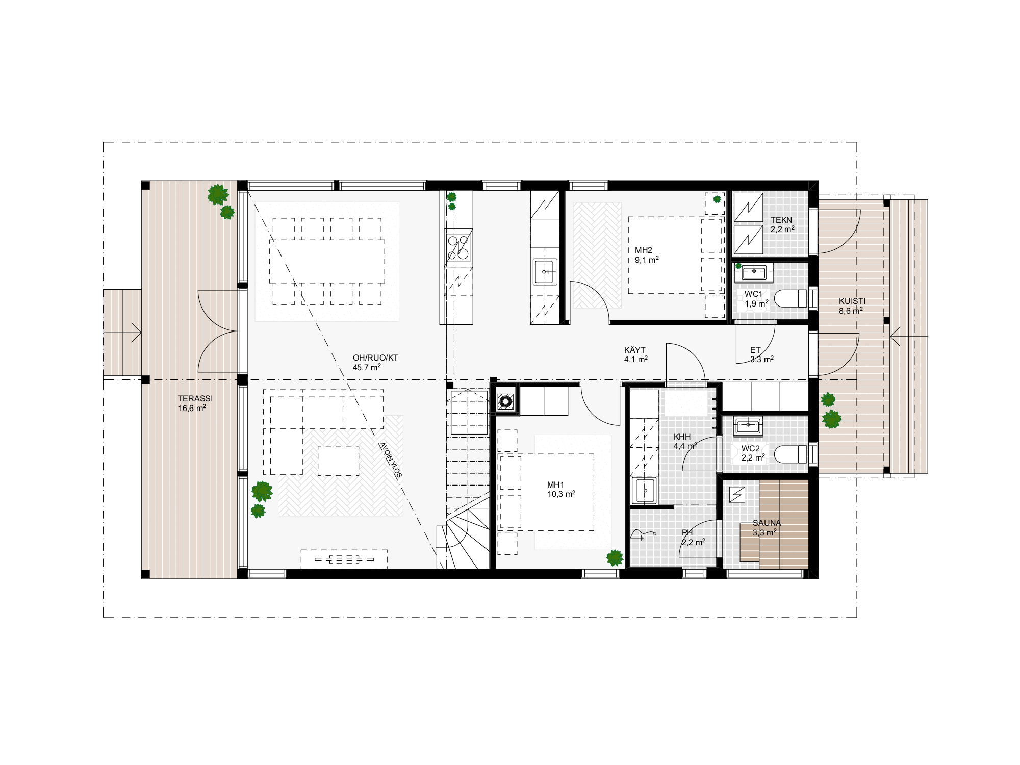
Huoneet
3 mh, yläaula, k, oh/ruo, 2 wc, ph, khh, sauna, tekninen tila
PYYDÄ TARJOUS

Lompolo on selkeälinjainen hirsihuvila, jossa suuret ikkunapinnat tuovat luonnon osaksi arkea ja tekevät tilasta poikkeuksellisen valoisan. Avara oleskelu-, ruokailu- ja keittiötila yhdistyy korkeaan tilaan, joka luo näyttävän ja rauhallisen tunnelman vapaa-aikaan.​

Huolella suunniteltu pohjaratkaisu tarjoaa toimivuutta ja mukavuutta: kolme makuuhuonetta, saunaosasto sekä käytännölliset arjen tilat muodostavat tasapainoisen kokonaisuuden. Parvi tuo lisää joustavaa tilaa oleskeluun tai majoittumiseen. ​

Suojaisa terassi ja kuisti laajentavat oleskelun ulos ja kutsuvat nauttimaan ympäröivästä luonnosta ympäri vuoden. Tämä hirsikoti yhdistää modernin selkeyden, lämpimän materiaalin ja maiseman osaksi asumiskokemusta.

Haluatko muutoksia malliin?

Voit valita pohjaratkaisuun sellaisenaan tai muuntaa siitä juuri sinun näköisesi. Suunnittelupalvelumme on tukenasi koko rakennusprojektin ajan aina ensisuunnitelmista valmiin talon viimeistelyyn.

Revontulimökit
valmiina tontille

Mökki lappiin muuttovalmiina

Varaa kartoituskeskustelu