Mukka 145

Kerroksia
1,5
Kerrosala
72,5 + 72,5 m²
Huoneet
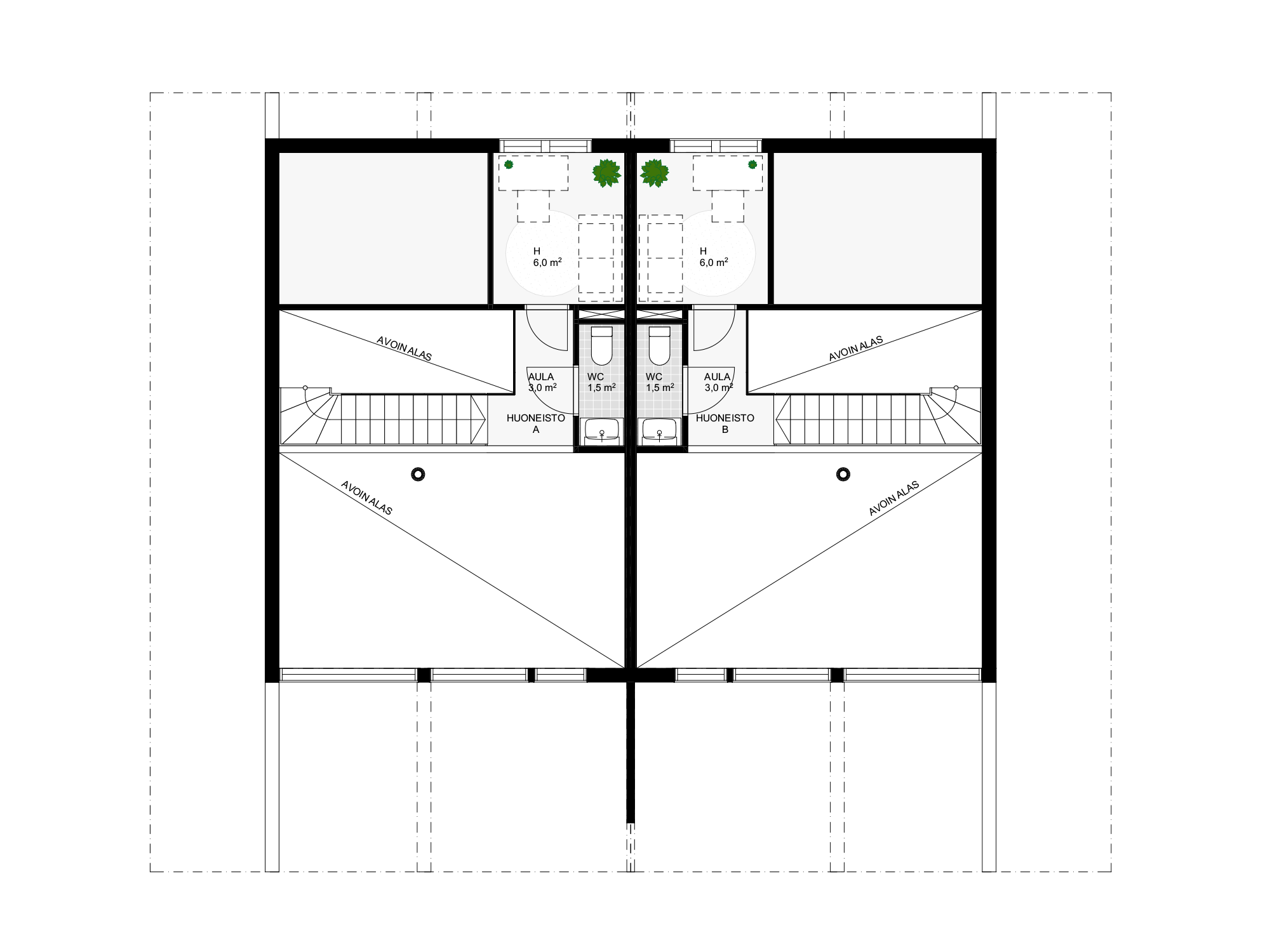
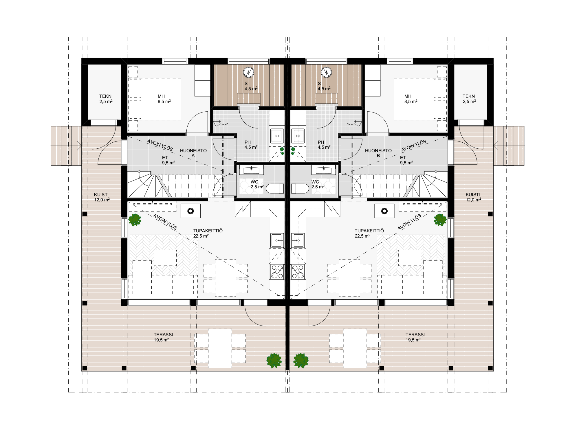
2 mh, tpk, 2 wc, ph, sauna, tekninen tila / asunto
PYYDÄ TARJOUS

Mukka on Lappi-malliston näyttävä monen kerroksen paritalo, joka on suunniteltu erityisesti rinnetonteille ja luonnonläheiseen vapaa-ajan asumiseen.

Alakerran tupakeittiö avautuu kuisteille ja suurille terasseille, ja oleskelutilassa on avoin yhteys yläkertaan, mikä tuo valoa ja avaruutta. Sauna, pesutilat ja erillinen wc tekevät arjesta sujuvaa. Yläkerrassa on makuuhuone, aula ja wc.

Kahdessa tasossa

Kolmessa tasossa kellarikerroksella

Haluatko muutoksia malliin?

Voit valita pohjaratkaisuun sellaisenaan tai muuntaa siitä juuri sinun näköisesi. Suunnittelupalvelumme on tukenasi koko rakennusprojektin ajan aina ensisuunnitelmista valmiin talon viimeistelyyn.

Mökki lappiin muuttovalmiina

Revontulimökit
valmiina tontille

Varaa kartoituskeskustelu

Haluatko kuulla lisää?

Olitpa kiinnostunut tästä mallista tai hirsirakentamisesta yleisesti, autamme mielellämme. Katso lähin talomyyjäsi ja ota rohkeasti yhteyttä – tehdään unelmistasi totta!