Tokka 165

Kerroksia
1,5
Kerrosala
82,5 + 82,5 m²
Huoneet
2 mh, h, tpk, ph, 2 wc, sauna, tekninen tila / asunto
PYYDÄ TARJOUS

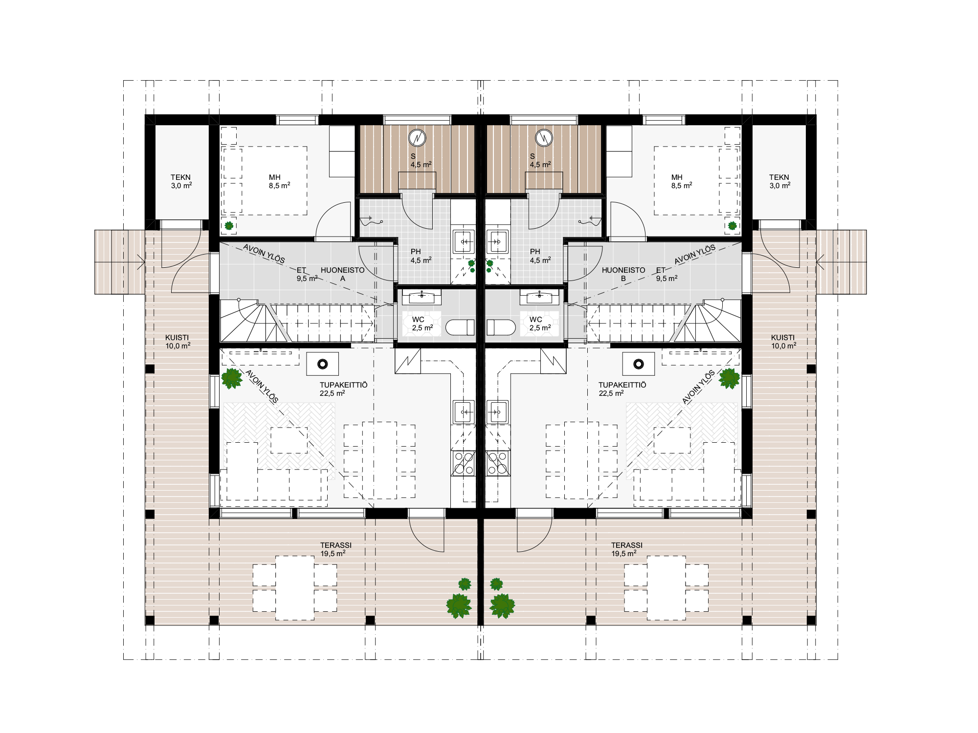
Tokka on Lappi-malliston selkeälinjainen ja kahteen tasoon rakentuva paritalo, joka tarjoaa 74 m² huoneistoalan per asunto. Ratkaisu sopii erinomaisesti niin vapaa-ajan käyttöön kuin ympärivuotiseen asumiseen.

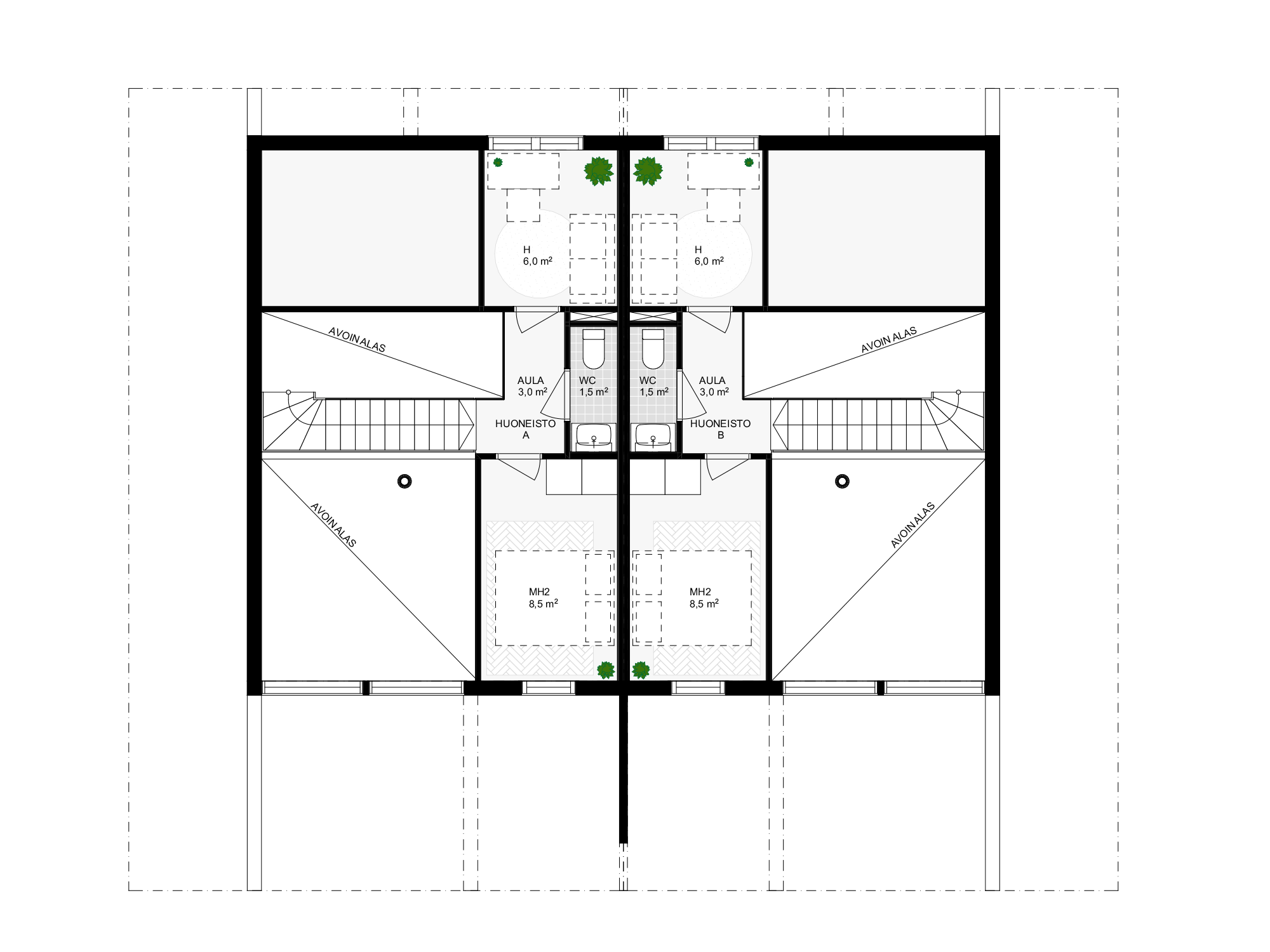
Alakerran tupakeittiö on kodin sydän: avara tila avautuu isoille terasseille ja kuisteille, mikä tuo luonnon osaksi oleskelua. Huoneistosta löytyy myös makuuhuone, saunaosasto ja erillinen wc. Yläkerta tarjoaa lisää yksityisyyttä toisen makuuhuoneen, wc:n ja pienen aulan muodossa. Avoin ratkaisu tuo valoa ja tilan tuntua sekä yhdistää kerrosten tunnelman pehmeästi.

Tokka 165 on kompakti mutta selkeästi jäsennelty paritalo, jossa pohjaratkaisu palvelee sekä perheitä, ystäväporukoita että suurempien kokonaisuuksien rakennuttajia.

Kahdessa tasossa

Kolmessa tasossa kellarikerroksella

Haluatko muutoksia malliin?

Voit valita pohjaratkaisuun sellaisenaan tai muuntaa siitä juuri sinun näköisesi. Suunnittelupalvelumme on tukenasi koko rakennusprojektin ajan aina ensisuunnitelmista valmiin talon viimeistelyyn.

Mökki lappiin muuttovalmiina

Revontulimökit
valmiina tontille

Varaa kartoituskeskustelu

Haluatko kuulla lisää?

Olitpa kiinnostunut tästä mallista tai hirsirakentamisesta yleisesti, autamme mielellämme. Katso lähin talomyyjäsi ja ota rohkeasti yhteyttä – tehdään unelmistasi totta!