Kuru 150

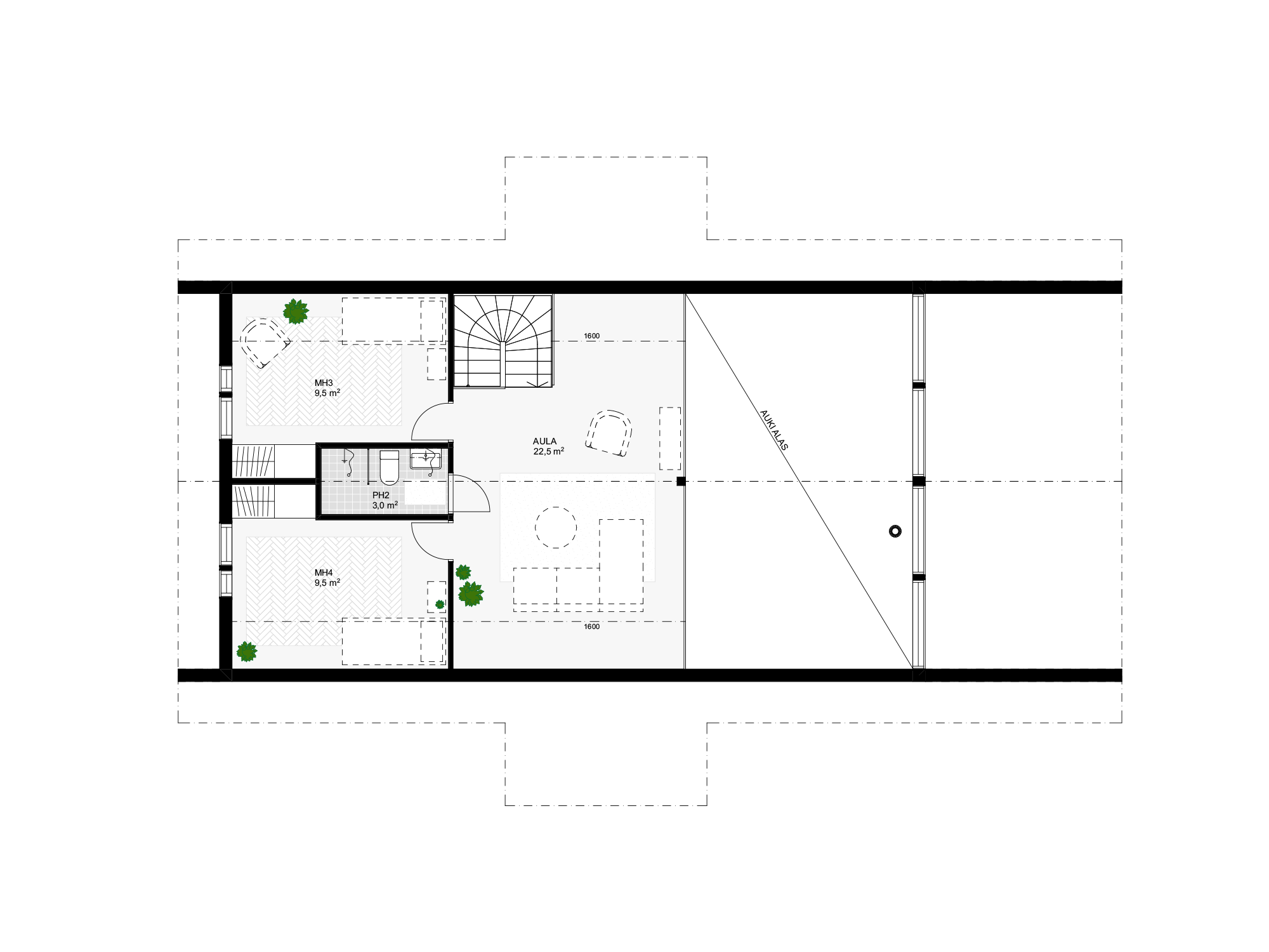
Floors
1,5
Floor area
150
Rooms
4 bedrooms, upstairs hallway, living room, dining/kitchen, 2 bathrooms, 2 shower rooms, utility room, sauna, utility room​
REQUEST A QUOTE

Panoramic windows stretching from floor to ceiling in the living room and dining area bring Lapland's nature into the interior. The bright light of morning, the blue moments of the polar night, and the warm tones of autumn change with the seasons – making every day different. In this home, the landscape is not just a backdrop, but part of the architecture.

Modern column beam technology enables an impressive glass wall without a heavy appearance. The result is light, refined, and timelessly clear—architecture that stands the test of time and remains pleasing to the eye.

The high ceiling gives the building a stately silhouette and a strong northern identity. It brings a sense of space and dignity to the interior, which is immediately apparent upon entering.

The compact and carefully designed floor plan ensures that every square metre is used efficiently. Kuru 150 offers more space, functionality and experience than its square metres alone would suggest. It is the perfect leisure home – or year-round second home – for those who appreciate architecture, views, and high-quality log construction.

Kuru 150 is part of our LaplandCollection range – explore all the model options or let's design a completely unique destination together.

Would you like to make changes to the template?

You can choose the floor plan as is or customize it to suit your exact preferences. Our design services will support you throughout your entire construction project, from the initial plans to the finishing touches on your completed home.

A cottage in Lapland, ready to move into

Northern Lights Cabins
ready for installation

Book an online meeting